Edificio Multifamiliar - Av. Principal 750 - Surquillo.
H&C INVESTMENTS en asociación comercial con DUBAI INVESTMENTS presenta Proyecto Principal, Edificio Multifamiliar con un área de terreno de 215 m2 y un área construida de 2,220 m2 aproximadamente ubicado en la avenida principal 750 distrito de Surquillo Urbanización Jorge Chávez.
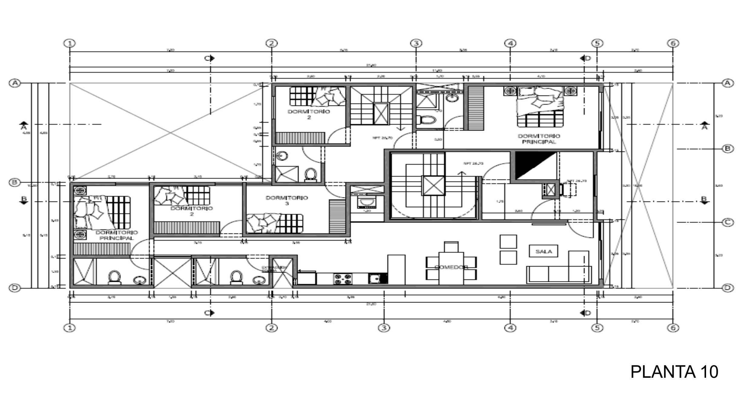
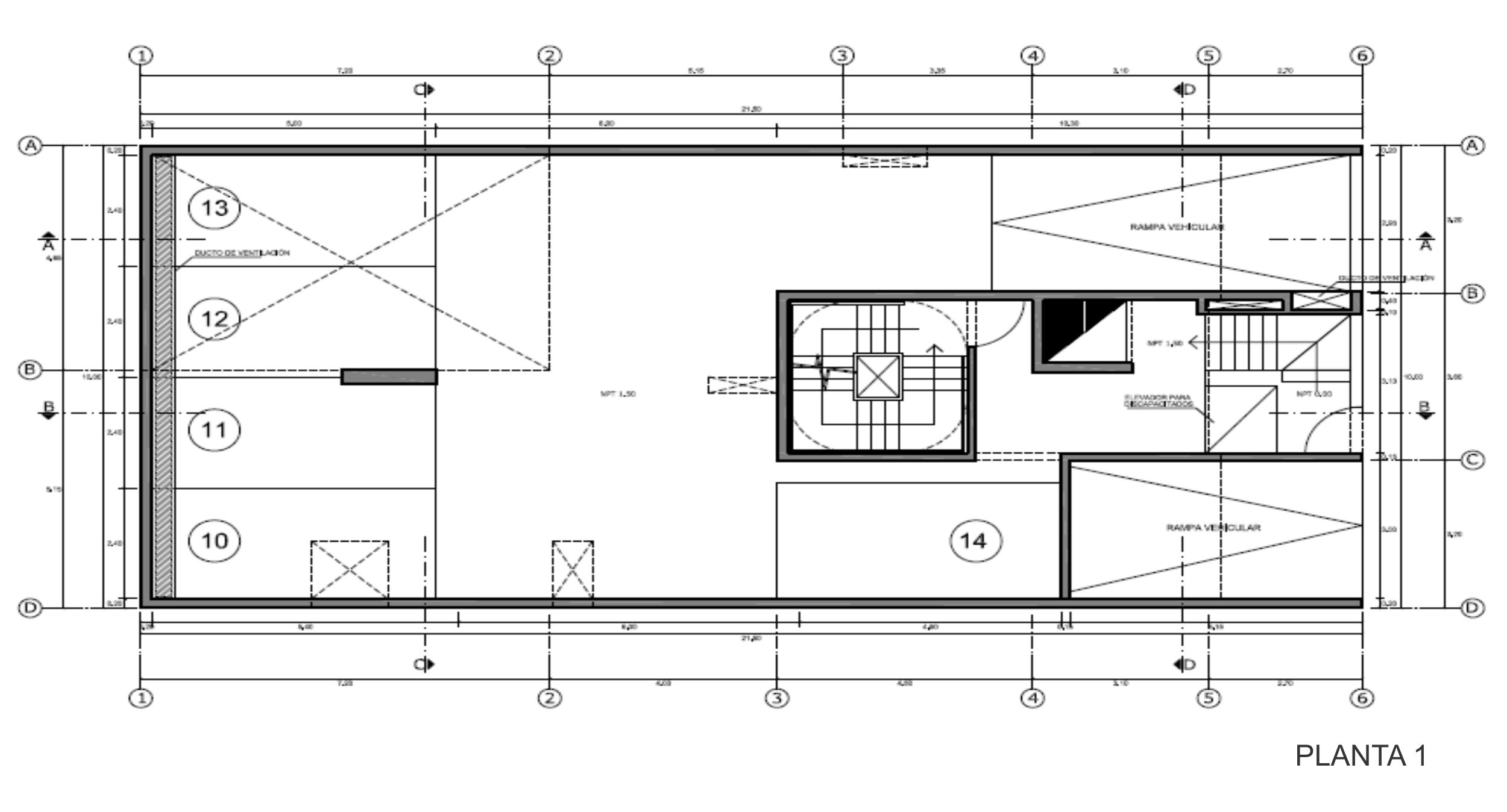
En el terreno en mención, se ha proyectado un edificio de 1 sótano, 1 semisótano y 9 pisos según planos.
El Proyecto Principal, posee amplios departamentos de 2 y 3 dormitorios con vista a la calle principal, acabados de primera calidad en una de las zonas mas estratégicas de Lima.
El Proyecto posee tres tipos de departamentos DUPLEX, FLAT y PENT HOUSE; se encuentra ubicado a pocos minutos de cines, restaurantes, centros comerciales y supermercados. Áreas desde 55 m2, dormitorio principal con baño incorporado y clóset amplios en todas las habitaciones. Cocina amoblada, lavandería, cuarto y baño de servicio. Una cochera por departamento, ascensor de ultima generación.
El Proyecto destaca por la sobriedad de su diseño, una línea moderna y materiales expuestos que combinan perfectamente, en los interiores predominan acabados que han sido elegidos responsablemente, considerando un adecuado balance entre calidad y buen gusto.
Considerar el detalle de la siguiente distribución:
- Departamento FLAT de 55 mts2 en el octavo piso
- Departamentos FLAT de 80 mts2 del segundo al séptimo piso.
- Departamentos FLAT de 71 mts2 del octavo al decimo piso
- Departamentos un DPX de 90mts2 en el piso dos, cuatro y seis.
- Departamento PENT HOUSE de 110mts2 de área techada y 30mts2 de área libre en el piso diez.
SALA-COMEDOR, ESTAR Y PASADIZO:
- Piso: Laminado color haya o cerezo flotante.
- Contra zócalo: De madera color similar al piso 7cm.
- Pared: Tarrajeada, empastada y pintada con pintura súper mate.
- Mampara: Cristal crudo con serie 25.
- Ventanas: Cristal crudo con serie 20.

Dirección: Av. Principal #750 - Surquillo
Teléfono: (01) 228 3174
Celular: 949 140 225 / 947 118 802
Email: rose.barreto@hycinvestments.com
Mándanos tus consultas y solicitudes.
Envíanos un email para poder resolver tus dudas. Si deseas un contacto instantáneo llamanos a los siguientes números.